Transformator trójfazowy AC
Rozwiązanie oszczędzające miejsce-na-szynie DIN do pomiaru prądu trójfazowego. QC3N1-45 integruje trzy kanały pomiarowe w jednym transformatorze półprzewodnikowym, upraszczając okablowanie i skracając czas instalacji podczas monitorowania obciążeń od 300 A do 600 A z urządzeniami wyjściowymi 5 A.
Opis
Trójfazowy przekładnik prądowy - Kompleksowa analiza techniczna
1. Podstawowa definicja i zasada działania
Trójfazowy przekładnik prądowy (CT) to wyspecjalizowany przekładnik zaprojektowany dla wielofazowych systemów zasilania prądem przemiennym. Działa jako precyzyjne urządzenie skalujące, które przekształca-prądy pierwotne o dużym natężeniu (od dziesiątek do tysięcy amperów) na znormalizowane, izolowane i proporcjonalnie zmniejszone prądy wtórne. Transformacja ta umożliwia bezpieczne, dokładne i niezawodne monitorowanie, pomiary i ochronę trójfazowych-sieci elektrycznych poprzez połączenie z urządzeniami niskoprądowymi, takimi jak liczniki energii, przekaźniki ochronne i systemy gromadzenia danych.
Podstawowa zasada działania: Działa w oparciu o podstawowe prawa indukcji elektromagnetycznej (prawo Faradaya). Prąd przemienny w każdym przewodniku pierwotnym generuje proporcjonalny zmienny strumień magnetyczny w odpowiednim rdzeniu, który następnie indukuje skalowany-prąd zmniejszający w uzwojeniu wtórnym. Stosunek transformacji (np. 100:5) pozostaje stały w określonych warunkach.
2.Montaż i kształt
Montaż na szynie DIN: przeznaczony do szybkiego-beznarzędziowego montażu na standardowych szynach DIN (EN 60715) wewnątrz paneli sterowania i tablic rozdzielczych.
- Montaż panelowy: Mocowany za pomocą wkrętów lub śrub bezpośrednio do płyty tylnej lub panelu.
- {0}}Przelotowy (typ-okienkowy): główny przewodnik (szyna zbiorcza lub kabel) po prostu przechodzi przez centralny otwór.
- Tuleja-Typ: montowany bezpośrednio na tulejach transformatora lub wyłącznika automatycznego.
Typowe zastosowania
- Przemysłowa dystrybucja energii: Monitorowanie obwodów zasilających i odgałęzionych w zakładach produkcyjnych.
- Infrastruktura komercyjna i centrum danych:-monitorowanie zasilania o dużej gęstości w szafach serwerowych i systemach HVAC.
- Systemy energii odnawialnej:-pomiar mocy wyjściowej falowników podłączonych do sieci i skrzynki łączące farmy słoneczne.
- Sterowanie i ochrona silnika:-obwody silników dużej mocy i systemy softstartów.
- Zarządzanie energią Pomiary podlicznikowe: fakturowanie najemców, profilowanie obciążenia i raportowanie dotyczące zrównoważonego rozwoju.
Zoptymalizuj przestrzeń panelu i uprość instalację dzięki 3-fazowemu transformatorowi QC3N1-45 AC – zaawansowanemu rozwiązaniu do montażu na szynie DIN-, zaprojektowanemu do zastosowań wysokoprądowych- wymagających precyzji, niezawodności i oszczędności miejsca. Ten zintegrowany transformator-z rdzeniem stałym przekształca pomiar prądu trójfazowego, łącząc trzy kanały pomiarowe w jedną solidną jednostkę, co zmniejsza złożoność i przyspiesza wdrażanie w środowiskach przemysłowych, komercyjnych i użyteczności publicznej.
Podstawowa innowacja: zintegrowane projektowanie uproszczonych systemów
Trójfazowy transformator QC3N1-45 AC zastępuje trzy oddzielne przekładniki prądowe jednolitym, kompaktowym urządzeniem zaprojektowanym do montażu na szynie DIN.
- Instalacja pojedynczego-jednostki: zamontuj raz, raz okablowaj – znacznie skracając czas i pracę instalacji.
- Schludny i zorganizowany układ: Eliminuje splątane okablowanie i wiele punktów montażowych, poprawiając dostępność panelu i estetykę.
- Konfiguracja-odporna na błędy:-okablowane połączenia wewnętrzne zmniejszają ryzyko błędów w fazowaniu lub okablowaniu, zapewniając niezawodne działanie od samego początku.
-Oszczędność miejsca-Montaż na szynie DIN w przypadku nowoczesnych paneli
- Kompaktowe wymiary: zajmuje do 60% mniej miejsca niż równoważny zespół trzech-CT, uwalniając cenną przestrzeń w zatłoczonych obudowach.
- Kompatybilny z szyną TS35/7.5/15: szybki montaż obok wyłączników, styczników i innych elementów-szyny DIN.
- Usprawniona konstrukcja panelu: umożliwia czystsze, bardziej modułowe projektowanie paneli, jednocześnie zmniejszając ogólny rozmiar obudowy i koszt.
Dlaczego warto wybrać QC3N1-45Transformator trójfazowy prądu przemiennego?
|
Korzyść |
Uderzenie |
|
Wydajność kosmiczna |
Zwalnia miejsce na panelu na dodatkowe komponenty lub przyszłą rozbudowę |
|
Szybkość instalacji |
Skraca czas pracy i przyspiesza oddanie projektu do użytku |
|
Uproszczenie okablowania |
Minimalizuje punkty połączeń i potencjalne błędy |
|
Spójność wydajności |
Dopasowane kanały zapewniają jednakową dokładność we wszystkich trzech fazach |
|
Skalowalność |
Obejmuje szeroki zakres prądów w ramach jednej rodziny produktów |
Podsumowanie specyfikacji technicznych
Typ: kombinowany 3-fazowy przekładnik prądowy z rdzeniem stałym
Prąd pierwotny: 300A, 400A, 500A, 600A (konfigurowalny)
Wyjście wtórne: 5A (opcjonalnie 1A)
Klasa dokładności: Klasa 1.0 (dostępna klasa 0.5)
Obciążenie znamionowe: mniejsze lub równe 5 VA
Częstotliwość: 50/60 Hz
Montaż: szyna DIN- (35 mm)
Napięcie izolacji: 0,72 kV
Temperatura robocza: -25 stopni do +70 stopni
Ulepsz swoją-strategię pomiarów wysokoprądowych za pomocą QC3N1-45 -, w którym zaawansowana integracja łączy się z solidną wydajnością w-oszczędzającym miejsce-zestawie na szynę DIN. Niezależnie od tego, czy chodzi o usprawnienie budowy nowego panelu, czy modernizację istniejącego systemu, transformator ten zapewnia dokładność, niezawodność i wydajność wymaganą przez dzisiejsze wyzwania związane z monitorowaniem mocy.
Parametry
|
Model |
Stosunek [A] |
Obciążenie [VA] |
|
Klasa 1 |
||
|
QC3N1-45 |
300/5 |
2.5 |
|
QC3N1-45 |
400/5 |
2.5 |
|
QC3N1-45 |
500/5 |
2.5 |
|
QC3N1-45 |
600/5 |
2.5 |
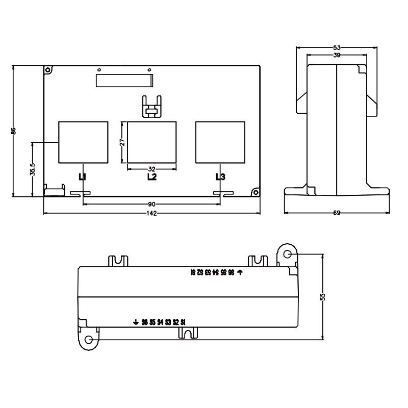
Wymiar (mm)

Popularne Tagi: transformator 3-fazowy prądu przemiennego, Chiny producenci, dostawcy, fabryka transformatorów 3-fazowego prądu przemiennego, 3-fazowy transformator zmienny, Trójfazowy przekładnik prądowy prądu przemiennego, Transformatory prądowe niskiego napięcia 3-fazowe
Wyślij zapytanie
Może ci się spodobać również












